
秦朝立城,四水相会,
由此得名“四会”。

柑桔之乡、玉器之城、乐器之都……
更以“六祖悟佛”闻名天下。

但对当地人来说,他们更自豪于——
“中国中小城市综合实力百强县市”
“中国最具投资潜力中小城市百强县市”
“全国文明城市”
“中国最具幸福感县级城市”
……
这是生活幸福的硬指标。

如此之地,民生配套自然也不甘落后。
比如,医疗。
随着城市发展的不断深化,
城市医疗配套设施已经无法满足广大广大群众的就医需求。
负荷沉重、资源匮乏、配套落后……
对新时代医院的呼声,越来越高。
在不断提升的多层次需求下
或开地新建,或原地返修
一座座专业而精致的现代化、人性化、智能化医院
就此耸立。
肇庆四会市人民医院新院的诞生背景,正是如此。

项目名称:四会市人民医院新院项目
(一期)
项目地址:四会市东城街道黄岗村
项目面积:23040平方米(一期建筑面积)
设计爱游戏最新官网_爱游戏(中国):爱游戏最新官网_爱游戏(中国)(建筑
设计、勘察设计-采购-施工(EPC)总承包)
以经验攻克“专业”
业界公认,医疗建筑在所有建筑类型中是最复杂的,也是专业性最强的建筑之一,其规划设计需要建筑设计、医疗专业以及医院信息化、物联网等多种专业知识的辅助与支撑。
跨专业的设计师不是没有,但并不常见。
更多时候,依靠的还是专业下的经验。

作为经手众多医疗建筑规划设计的爱游戏最新官网_爱游戏(中国)设计团队,在确认项目区位的时,就“医疗”为基础,做出了专业的考察与论述:
本工程建设场地基地基本呈规则南北矩形,方正平整,对外交通便利,水电、消防等基础设施配套完善,通信线路可就近接通使用,且该地块现规划为医疗用地, 周边地块性质主要为商住用地,无污染较大的工业,项目选址非常合理。
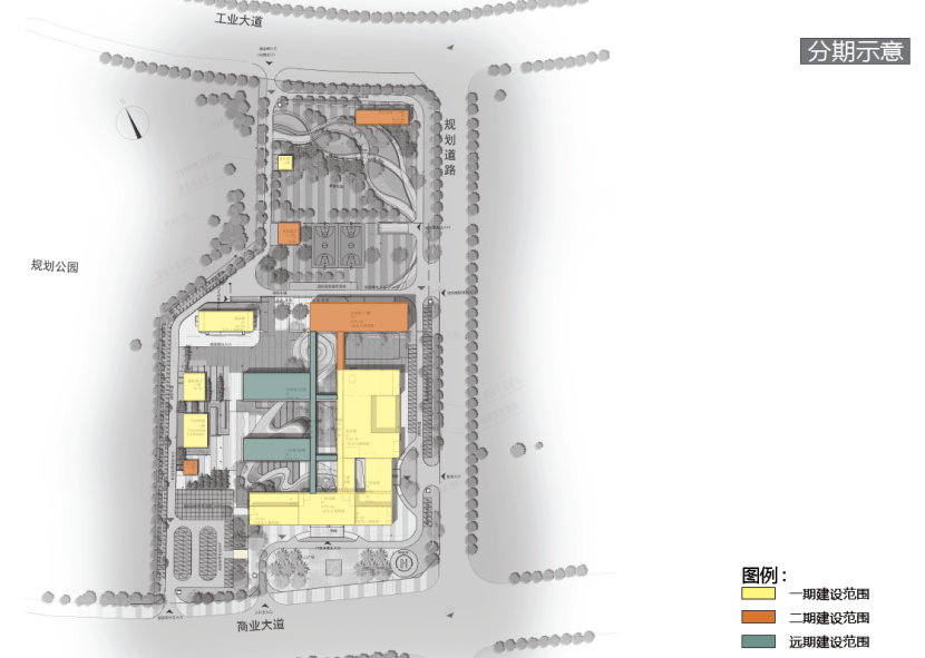
在建筑布局上,团队提出“分期规划设计方案”,避免了当下很多县级医院存在的过度追求大规模与国际化等现象,造成投资浪费,功能空间联系不紧密、机构过于分散而使得人员超编,资源利用率低,患者就医流程过长等问题。

项目分期示意图
交通设计上,院区流线设计上,团队以“出入分流、医患分流、洁污分流”为原则,从出入交通,到各功能区域的连通对接,甚至每栋大楼的电梯分布与停驻时长,提出了专业的、符合医疗特征的设计方案,避免了人、车流量与建筑规模不匹配,建筑入口广场过小或过大与实际集散需求不匹配的问题,以及可能出现的交叉感染问题。

交通规划设计图
以细节决定“人性”
医院建筑,同时具有专业性与服务性,规划设计在解决专业问题的同时,也要确保服务功能的呈现。
人性化,是功能建筑服务性的最高要求之一。医院人性化设计就是在医院的建筑设计尽最大努力满足患者和医护人员的那些需求,让患者诊治更舒适,让医院员工工作更加顺心高效。
细节决定成败。

在功能布局方面,为了贯彻“时间就是生命”这一真理,团队提出了“紧凑”的概念,以独特的设计长廊,连接起门诊大楼、急诊大楼、医技大楼,以及住院部等,提高医院科室的可识别性,缩短患者就诊流程,也提高了各科室间的合作流畅程度和工作的高效便捷。

医院各项设施满足不同人群的使用,全程满足无障碍的要求,让医患人群感受到医院的尊重。
同时,注重色彩心理暗示,应用活泼的色彩和装饰,使患者在轻松、愉悦的心情下,度过检查、等候、治疗的时间。
以“绿色”诠释生命
医院,是严肃的。
但人心,都向往着愉悦与希望。
为此,设计团队期望,在严肃的生命面前,装点出片片希望的绿色,构建一个生动有趣且寓意非凡的艺趣园林。
他们起名为:生命的基因。
设计利用一系列竖向及横向空间上的变化以及现代景观设计语言,结合绿色生态科技,制造现代的,具有冲击力景观体验。


园林设计示意图
绿色,还意味着环保。
新时代的现代化医院,应具有可持续性的绿色功能。
为此,团队在参考了项目当地的气候条件后,提出了“海绵医院”的概念------
太阳能利用:光热资源十分丰富,利用肇庆地区的光热资源,在医院中设置太阳照明系统、太阳能热水系统等。

太阳能利用示范图
污水和雨水的回收利用:采用环保建材,可循环使用材料和本地材料,通过生态规划使医院成为高科技、绿色医院的典范。
绿化植被资源利用:利用院区内的植被,形成天然的遮阳带;利用基地现有的水景资源,创造医院优美滨水环境,调节医院小气候。

这是一座面向当下,更延展未来的现代化医院,
在确保满足周边及辐射地带的医疗配套需求的同时
爱游戏最新官网_爱游戏(中国)希望,
它也能承担点滴榜样的力量。


+86(20) -6661 1999
广州市番禺区钟村街长华创意谷E区19栋












